Platz für Ihre Familie und Ihre Ideen – Einfamilienhaus mit großem Garten


















- ImmoNr
- 1116
- Nutzungsart
- Wohnen
- Vermarktungsart
- Kauf
- Objektart
- Haus
- Objekttyp
- Einfamilienhaus
- PLZ
- 97204
- Ort
- Höchberg
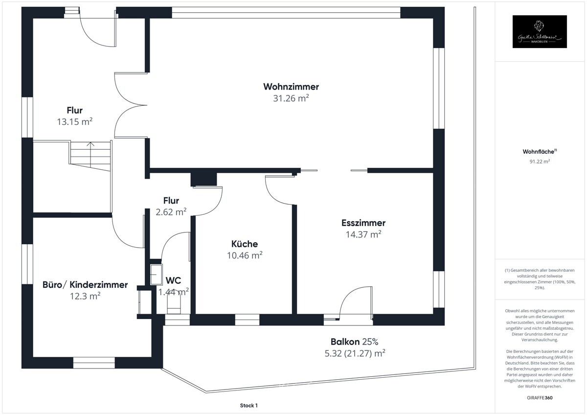
- Wohnfläche
- ca. 150 m²
- Grundstücksgröße
- ca. 990 m²
- Anzahl Zimmer
- 6
- Anzahl Badezimmer
- 1
- Etagenzahl
- 2
- Kaufpreis
- 357.000,00 €
- Außen-Provision
- 3,57% inkl. MwSt.
- Baujahr lt. E-Ausweis
- 1990
- Zustand
- Renovierungsbedürftig
- vermarktungsstatus
- Top Angebot
Objektbeschreibung
Träumen Sie von einem Ort, an dem Ihre Familie wachsen, ankommen und sich entfalten kann? Von einem Haus, das Charakter hat und Raum für Ihre eigenen Ideen bietet?In ruhiger und angenehmer Wohnlage von Höchberg, unweit von Würzburg, erzählt dieses Haus aus dem Baujahr 1958 schon heute eine Geschichte, welche darauf wartet von Ihnen liebevoll weitergeschrieben zu werden. Auf ca. 150 m² Wohnfläche und einem großzügigen, rund 990 m² großen Hanggrundstück eröffnet sich Ihnen ein echtes Lebensprojekt: ein Rückzugsort mit viel Potenzial, Weitblick und Platz für alles, was Familie ausmacht.
Das Haus befindet sich in einem sanierungsbedürftigen Zustand – bietet jedoch genau dadurch die Chance, aus Bestehendem etwas ganz Eigenes zu machen. Die Raumaufteilung steht bereits und eignet sich ideal für eine Familie, die nicht neu planen, sondern auf einer soliden Grundlage aufbauen möchte. Mehrere Schlafräume, ein lichtdurchfluteter Wohnbereich mit idyllischem Ausblick, Küche, Bad und weitere praktische Räume verteilen sich über das Haus und bieten Platz für alle Bedürfnisse des täglichen Lebens: vom gemeinsamen Familienleben bis zu individuellen Rückzugsorten. Besonders hervorzuheben ist das große Grundstück, welches viel Raum für Freizeit, Gartenprojekte oder einfach entspannte Stunden im Grünen bietet – ein echter Traum für Kinder, Hobbygärtner und alle, die sich nach einem Stück Natur direkt am eigenen Zuhause sehnen.
Schulen, Kindergärten, Einkaufsmöglichkeiten und Freizeitangebote sind schnell erreichbar – ebenso wie Busverbindungen oder die Autobahn.
Dieses Haus ist kein Neubau, kein schlüsselfertiges Projekt – aber es ist ein Ort mit Charakter, Platz und Möglichkeiten. Für Menschen, die mit Liebe renovieren möchten, die Freude daran haben, etwas Bleibendes für ihre Familie zu schaffen und die ein Haus suchen, welches sie nach und nach in ein echtes Zuhause verwandeln können.
Wir haben Ihr Interesse geweckt? - dann zögern Sie nicht allzu lange und fordern das Exposé zur Immobilie an oder vereinbaren direkt einen Besichtigungstermin.
!!! Weitere Bilder, Zugang zum 360°-Rundgang und alle relevanten Objektunterlagen, sowie eine detailreiche Objektbeschreibung erhalten Sie aus dem Exposé, welches Sie gerne anfordern können !!!
Lagebeschreibung
Das Einfamilienhaus liegt am idyllischen Ortsrand von Höchberg, ca. 2,5 km westlich von Würzburg und gut erreichbar über die B8, B27 und die Autobahnen A3 und A7. In der Gemeinde wohnen knapp 9.600 Einwohner, welche von dem außergewöhnlichen Wohn- und Erholungswert Höchberg´s profitieren. Durch die Berg- und Tallage des Ortes, bestehen innerhalb der Gemarkung beträchtliche Höhenunterschiede (Sender Frankenwarte - einer der höchsten Punkte mit ca. 360 m).Auch Naturliebhaber kommen hier auf ihre Kosten: Rund um Höchberg laden Wälder, Felder und Spazierwege zu kleinen Auszeiten ein – ob beim Spazierengehen, einer Fahrradtour oder einem stillen Moment im Grünen.
Kurz gesagt: Diese Lage verbindet das Beste aus zwei Welten – die Nähe zur Stadt mit dem Gefühl von Landleben. Hier entsteht nicht einfach ein Wohnsitz, sondern ein Ort, an dem Erinnerungen wachsen dürfen. Ein echtes Zuhause.
Im Gewerbegebiet südlich der B27 und nur 7 Minuten mit dem Auto entfernt, finden Sie Geschäfte wie Rewe, Lidl, dm, Deichmann, Jysk und Woolworth.
!!! Weitere Bilder, Zugang zum 360°-Rundgang und alle relevanten Objektunterlagen, sowie eine detailreiche Objektbeschreibung erhalten Sie aus dem Exposé, welches Sie gerne anfordern können !!!
Energieausweis
- Baujahr
- 1958
- Endenergiebedarf
- 480,46 kWh/(m²a)
- Energieausweis
- Bedarfsausweis
- Energieausweis gültig bis
- 08.05.2035
- Energieeffizienzklasse
- H
- wesentl. Energieträger
- Öl
Ausstattung
Baujahr = 1958Wohnfläche = ca. 150 m²
Grundstück = 990 m²
Zimmer = 6
Heizung = Ölzentralheizung
Fenster = 1-fach verglast
Keller = ja, 1 Kellerraum
Garage = ja, sanierungsbedürftig
Energiedaten:
- Bedarfsausweis
- Energiebedarf: 480,46
- Energieausweis gültig bis: 08.05.2035
- Baujahr laut E-Ausweis: 1990
- wesentl. Energieträger: Öl
- Energieeffizienzklasse: H
!!! Weitere Bilder, Zugang zum 360°-Rundgang und alle relevanten Objektunterlagen, sowie eine detailreiche Objektbeschreibung erhalten Sie aus dem Exposé, welches Sie gerne anfordern können !!!
Sonstiges
Weitere Bilder, Zugang zum 360°-Rundgang und alle relevanten Objektunterlagen, sowie eine detailreiche Objektbeschreibung erhalten Sie aus dem Exposé, welches Sie gerne anfordern können.Gerne stehen wir Ihnen für exklusive Besichtigungstermine zur Verfügung. Termine hierfür können Sie jederzeit schriftlich per E-Mail oder per Telefon mit uns vereinbaren.
Die vorliegenden Angaben sind ohne Gewähr und basieren auf Informationen, die vom Auftraggeber zur Verfügung gestellt worden sind. Es wird keine Gewähr über die Richtigkeit, Vollständigkeit und Aktualität der Angaben übernommen.
Sie sehen gerade einen Platzhalterinhalt von Google Maps. Um auf den eigentlichen Inhalt zuzugreifen, klicken Sie auf die Schaltfläche unten. Bitte beachten Sie, dass dabei Daten an Drittanbieter weitergegeben werden.
Mehr Informationen