Hotel mit Gastro, Biergarten & Tagungsbereichen in Top-Lage Nordheim






















- ImmoNr
- 1474
- Nutzungsart
- Gewerbe
- Vermarktungsart
- Kauf
- Objektart
- Gastgewerbe
- Objekttyp
- Hotelanwesen
- PLZ
- 97334
- Ort
- Nordheim am Main
- Nutzfläche
- ca. 940 m²
- Anzahl Zimmer
- 23
- Kaufpreis
- 970.000,00 €
- Außen-Provision
- 3,57% inkl. MwSt.
- Baujahr lt. E-Ausweis
- 1990
- Zustand
- Gepflegt
Objektbeschreibung
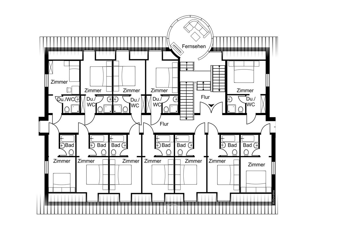
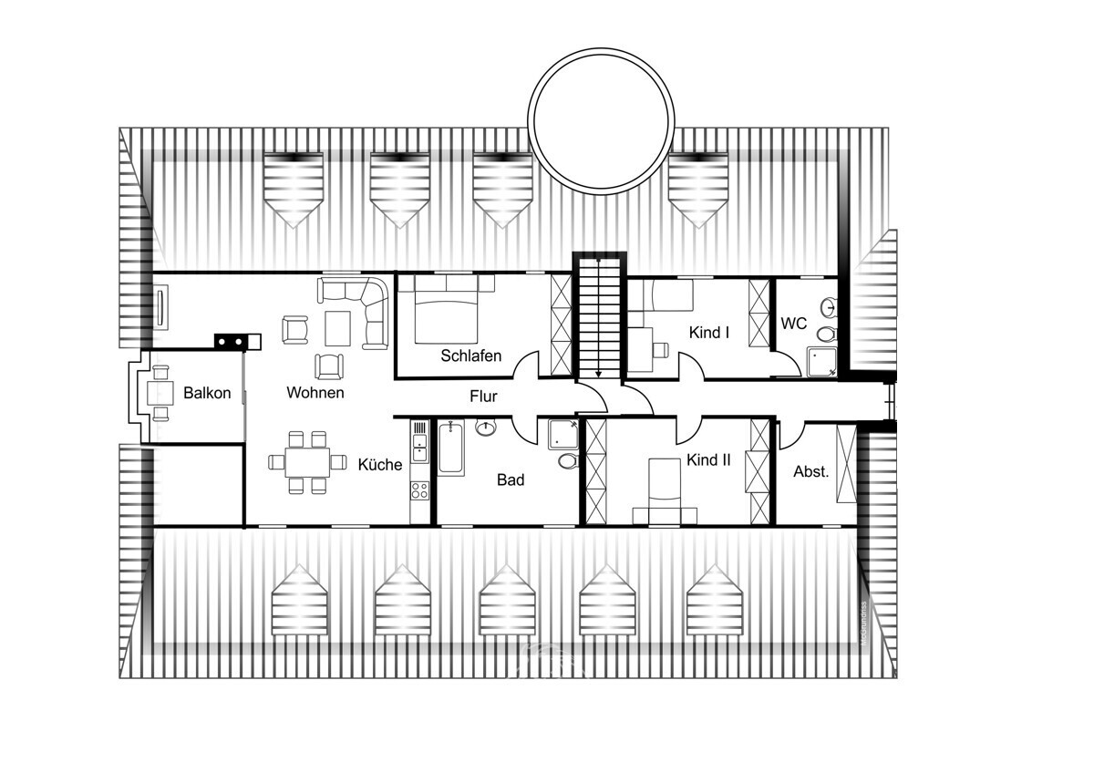
Dieser vielseitige Gastronomie- und Beherbergungskomplex in Nordheim am Main bietet zahlreiche Optionen für Betreiber, Investoren oder Projektentwickler.Auf zwei Etagen befinden sich 23 Hotelzimmer, überwiegend Doppelzimmer mit eigenem Bad, teilweise auch Familienzimmer. Darüber liegt eine Eigentumswohnung mit ca. 100 m² Wohnfläche.
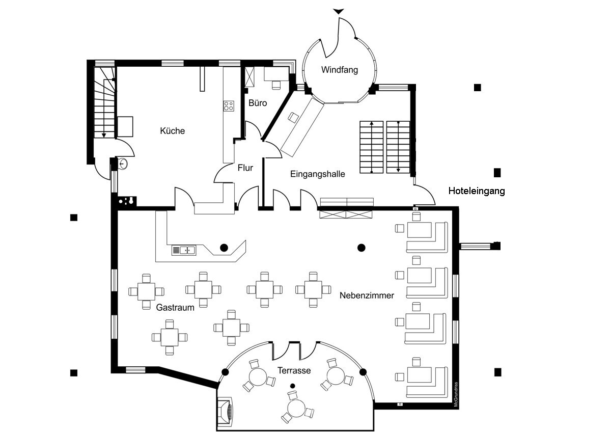
Der Gastronomiebereich im EG mit ca. 140 m² umfasst zwei großzügige, flexibel trennbare Gasträume mit insgesamt rund 100 Sitzplätzen, einer Bar, inkl. Beamer und Veranstaltungstechnik, für Vorträge und Feiern.
Von hier aus gelangt man direkt in den gepflegten, barrierefrei erreichbaren Biergarten, mit ca. 80 Sitzplätzen.
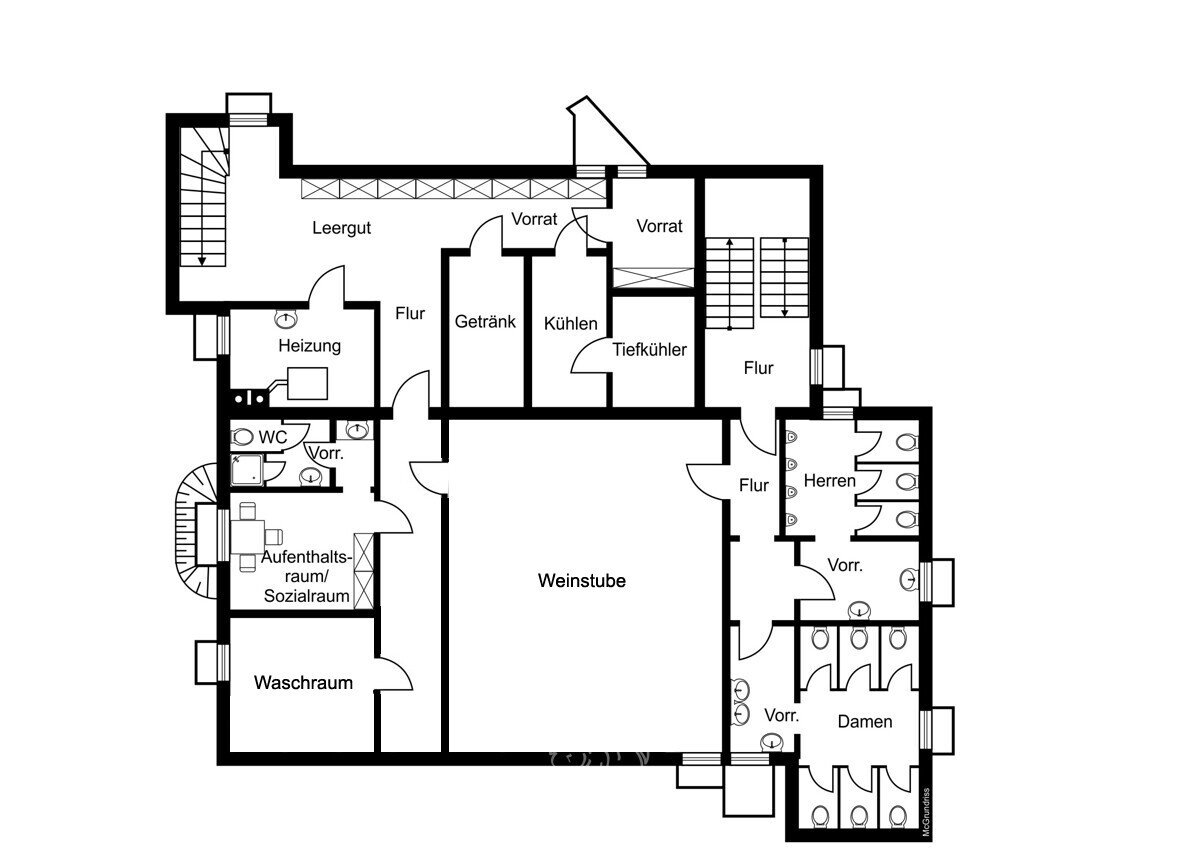
Eine Weinstube mit ca. 59 m² und ca. 45 Sitzplätzen im Keller sowie zahlreiche Nebenräume, Technik- und Lagerräume ergänzen das Raumangebot. 16 real nutzbare PKW-Stellplätze und eine Doppelgarage stehen ebenfalls zur Verfügung.
Ob Fortführung des bestehenden Gastbetriebs, Umnutzung zu Monteurzimmern oder Ausbau zu einem multifunktionalen Wohn- und Gewerbekonzept – die Immobilie überzeugt durch flexible Nutzungsmöglichkeiten und ihre hervorragende Lage an der Mainschleife.
Als eines der wenigen Häuser im Ort mit professioneller Tagungs- und Eventausstattung bietet diese Immobilie in einer touristisch stark gefragten Lage enormes Potenzial für Betreiber, Investoren oder Gastronomen.
Fordern Sie das vollständige Exposé an und entdecken Sie die vielfältigen Chancen dieses besonderen Anwesens.
Lagebeschreibung
Das Objekt liegt im beliebten Weinort Nordheim am Main, direkt an der Mainschleife und umgeben von Weinbergen.Die Region ist touristisch sehr gefragt, mit zahlreichen Weingütern, Restaurants, Ferienunterkünften und Freizeitangeboten. Fähre, Skatepark, Wanderwege und Weinradrouten befinden sich in unmittelbarer Nähe.
Die gute Erreichbarkeit und die zentrale Lage machen die Immobilie ideal für touristische und gewerbliche Nutzungskonzepte.
Vereinbaren Sie Ihren persönlichen Besichtigungstermin und überzeugen Sie sich von den Möglichkeiten dieser vielseitigen Immobilie.
Energieausweis
- Baujahr
- 1990
- Endenergieverbrauch
- 194,8 kWh/(m²a)
- Energieausweis
- Verbrauchsausweis Gewerbe
- Energieausweis gültig bis
- 13.11.2035
- Energieeffizienzklasse
- F
- wesentl. Energieträger
- Gas
Ausstattung
- Zwei Etagen (1. OG und DG) mit insgesamt 23 Hotelzimmern (überwiegend Doppelzimmer, alle mit eigenem Bad)- Eigentumswohnung im 2. DG mit ca. 100 m² Wohnfläche und Balkon mit tollem Ausblick
- Zwei große Gasträume mit variabler Raumaufteilung (insgesamt ca. 100 Sitzplätze) gesamt ca. 140 m²
- Direkter Zugang zum barrierefreien Biergarten mit ca. 90m²/80 Sitzplätzen
- Professionelle Gastronomieküche
- Weinstube mit ca. 59 m² im Keller mit ca. 45 Sitzplätzen
- Doppelgarage mit elektrischem Tor und 16 real nutzbare PKW-Stellplätzen
- Warmwasserspeicher
- Massive Bauweise, teilweise modernisierte Elektrik und Sanitäranlagen
- Lage in der beliebten Weinregion Nordheim am Main
- Brandmeldeanlage vorhanden (nicht an Feuerwehr gekoppelt)
- Heizungsart: Zentralheizung
- Energieträger: Gas
- Gas- und Fernwärmeanschluss vorhanden
- Inventarübernahme nach Absprache
- Baugenehmigung für einen Aufzug liegt vor
FLÄCHENÜBERSICHT
ca. 1.045 m² Gesamtfläche aufgeteilt wie folgt :
***
- ca. 105 m² Wohnfläche für Einliegerwohnung im 2. Dachgeschoss
Wohn- und Schlafräume, Küche, Bäder, Flur im 2. Dachgeschoss (separat vom Hotelbetrieb)
***
ca. 940 m² Nutzfläche, welche sich aufteilt wie folgt:
- ca. 207 m² Kellergeschoss (Weinstube, Lager- und Technikräume, Flure, Sanitärbereiche)
- ca. 232 m² Erdgeschoss (Gastronomie, Küche, Büro, Windfang, Flur)
- ca. 262 m² 1. Obergeschoss (Gästezimmer, Bäder, Flure, Treppenflur, Leseraum)
- ca. 239 m² Dachgeschoss (Gästezimmer, Bäder, Flure, Treppenflur, Fernsehraum)
***
In der Nutzfläche enthalten sind:
ca. 791m² Gewerbefläche aufgeteilt wie folgt:
ca. 291 m² Gastro
- EG Gastraum ca. 76,4 m², Nebenzimmer ca. 70,6 m², Küche ca. 46m², Büro ca. 7 m², Empfang/Lobby ca. 36 m², Weinstube im Keller ca. 59 m²,
ca. 500 m² Hotelbereich 1.OG/DG
- 11 Gästezimmer im 1. Obergeschoss und 12 Zimmer im Dachgeschoss inkl. zugehöriger Nutzflächen laut Berechnung
***
ca. 96 m² Nebenfläche: aufgeteilt wie folgt:
- Verkehrsflächen, Flure, Treppenhausbereiche, Leseraum, Fernsehraum, Technikraum/Heizraum, Vorräume und weitere Funktionsflächen, Waschraum, Aufenthaltsraum
***
ca. 53 m² Lagerfläche: aufgeteilt wie folgt:
- Leergutlager, Vorratsräume, Tiefkühlbereich, Kühlraum, Getränkelager
Sonstiges
Gerne stehen wir Ihnen für exklusive Besichtigungstermine zur Verfügung. Termine hierfür können Sie jederzeit schriftlich per E-Mail oder per Telefon mit uns vereinbaren.Die vorliegenden Angaben sind ohne Gewähr und basieren auf Informationen, die vom Auftraggeber zur Verfügung gestellt worden sind. Es wird keine Gewähr über die Richtigkeit, Vollständigkeit und Aktualität der Angaben übernommen.
Sie sehen gerade einen Platzhalterinhalt von Google Maps. Um auf den eigentlichen Inhalt zuzugreifen, klicken Sie auf die Schaltfläche unten. Bitte beachten Sie, dass dabei Daten an Drittanbieter weitergegeben werden.
Mehr Informationen