Reinhardshof Panorama: Wohnen mit Weitblick – Moderne KfW-55 EG-Wohnung mit Gartenanteil











- ImmoNr
- 1550
- Nutzungsart
- Wohnen
- Vermarktungsart
- Kauf
- Objektart
- Wohnung
- Objekttyp
- Erdgeschoss
- PLZ
- 97877
- Ort
- Wertheim
- Wohnfläche
- ca. 67 m²
- Anzahl Zimmer
- 2
- Anzahl Badezimmer
- 1
- Etagenzahl
- 1
- Kaufpreis
- 271.000,00 €
- Baujahr lt. E-Ausweis
- 2026
- Zustand
- Neuwertig
Objektbeschreibung
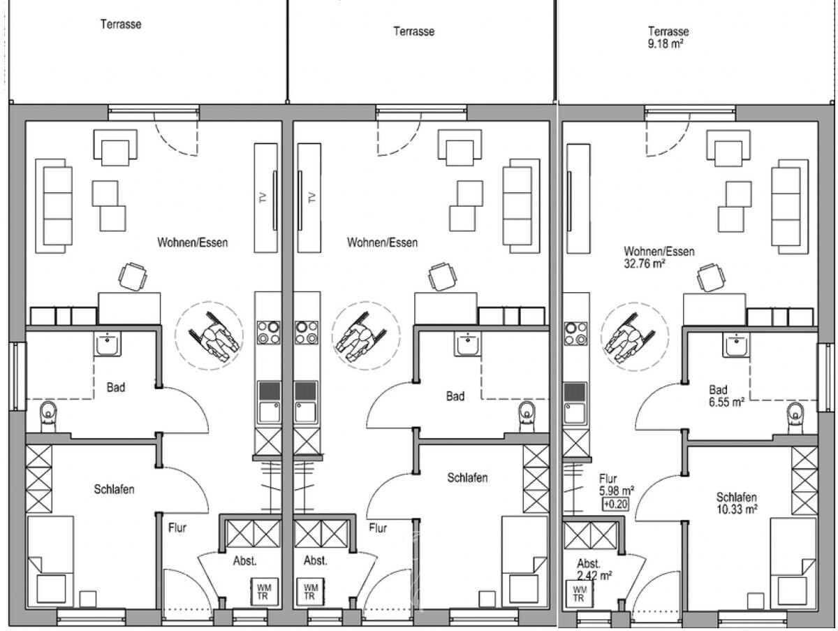
Im beliebten Wertheimer Stadtteil Reinhardshof entsteht mit „Reinhardshof Panorama“ ein modernes Neubauensemble mit insgesamt 18 Wohnungen, das zeitgemäße Architektur, energieeffiziente Bauweise und hohen Wohnkomfort vereint. Die angebotene Erdgeschosswohnung mit einer Wohnfläche von ca. 67 m² überzeugt durch eine durchdachte Raumaufteilung, barrierearmes Wohnen und einen privaten Außenbereich.Die Wohnung verfügt über ein Schlafzimmer, ein separates Abstellzimmer, ein modernes Badezimmer sowie einen großzügigen Wohn- und Essbereich mit offener Gestaltung. Großflächige Fenster sorgen für viel Tageslicht und ein angenehmes Wohnambiente. Vom Wohnbereich aus gelangt man direkt auf die private Terrasse mit Gartenanteil, die den Wohnraum ideal ins Freie erweitert und zusätzlichen Erholungswert bietet.
Hochwertige Ausstattungsdetails sowie individuell wählbare Materialien ermöglichen eine persönliche Gestaltung nach eigenen Vorstellungen. Die barrierefreie Ausführung im Erdgeschoss macht die Wohnung besonders komfortabel und zukunftsorientiert – geeignet für unterschiedliche Lebensphasen.
Das Gebäude wird im KfW-55-Standard errichtet und überzeugt durch eine nachhaltige, zukunftssichere Haustechnik. PKW- und Fahrradstellplätze sowie liebevoll gestaltete Außenanlagen ergänzen das durchdachte Wohnkonzept.
Diese Erdgeschosswohnung im Projekt Reinhardshof Panorama verbindet ruhiges, naturnahes Wohnen mit moderner Architektur, hoher Energieeffizienz und langfristiger Wertbeständigkeit – ideal für Eigennutzer wie auch Kapitalanleger.
Lagebeschreibung
Wertheim, die größte Stadt im Main-Tauber-Kreis, liegt malerisch am Zusammenfluss von Main und Tauber und ist Teil der wirtschaftsstarken Region Heilbronn-Franken. Als moderne große Kreisstadt verbindet Wertheim eine hohe Lebensqualität mit stabilen wirtschaftlichen Perspektiven und einer sehr gut ausgebauten Infrastruktur. Die Stadt bietet vielfältige Arbeitsplätze in Industrie, Handel, Logistik und Dienstleistung sowie ein umfassendes Bildungs-, Betreuungs- und Gesundheitsangebot. Damit ist Wertheim gleichermaßen attraktiv für Familien, Senioren, Best Ager und Menschen mit Mobilitätsanforderungen.Die hervorragende Verkehrsanbindung über die Autobahn A3 sorgt für eine schnelle Erreichbarkeit der umliegenden Städte und Wirtschaftszentren, während die von Weinbergen, Wäldern und Flusstälern geprägte Umgebung ein naturnahes und erholsames Lebensumfeld schafft.
Der Stadtteil Reinhardshof zählt zu den beliebtesten Wohnlagen Wertheims. Das Projekt Reinhardshof Panorama befindet sich in einem ruhigen, grünen Wohngebiet mit gepflegter Bebauung und familienfreundlicher Struktur. Einkaufsmöglichkeiten, Gastronomie, Dienstleistungen sowie Freizeit- und Erholungsangebote sind in kurzer Zeit erreichbar. Spazierwege, Sportanlagen und angrenzende Waldflächen laden zu vielfältigen Aktivitäten im Freien ein.
Ärzte, Apotheken sowie Gesundheits- und Pflegeeinrichtungen befinden sich in der näheren Umgebung und gewährleisten eine sehr gute medizinische Versorgung. Fußläufig erreichbare Bushaltestellen sorgen für eine komfortable Anbindung an die Innenstadt und weitere Stadtteile. Die leicht erhöhte Lage ermöglicht attraktive Ausblicke und verbindet Naturnähe mit urbaner Nähe – ein Standort, der sowohl für Eigennutzer als auch für Kapitalanleger überzeugt.
***Entfernungen im Überblick***
- Wertheim Innenstadt: ca. 10 Minuten
- Supermärkte (Edeka, Rewe, Aldi, Lidl): ca. 5–10Minuten
- Ärzte & Apotheken: ca. 5 Minuten
- Klinikum Wertheim: ca. 12 Minuten
- Bildungseinrichtungen: ca. 5-15 Minuten
- Mainufer, Wander- und Radwege: 5-15 Minuten
Verkehrsanbindung:
- Autobahn A3 (Anschluss Wertheim/Lengfurt): ca. 15 Minuten
- Bundesstraße B8: ca. 15 Minuten
- Bundesstraße B27: ca. 15 Minuten
- Wertheim Zentrum: ca. 10 Minuten
- Tauberbischofsheim: ca. 25 Minuten
- Würzburg: ca. 40 Minuten
Flughäfen:
- Flughafen Frankfurt (FRA): ca. 60–70 Minuten
- Flughafen Nürnberg: ca. 1 Std. 45 Minuten
- Flughafen Stuttgart: ca. 1 Std. 30 Minuten
Energieausweis
- Baujahr
- 2026
- Endenergiebedarf
- 35,4 kWh/(m²a)
- Energieausweis
- Bedarfsausweis
- Energieausweis gültig bis
- 22.02.2036
- Energieeffizienzklasse
- A+
- wesentl. Energieträger
- Luft/Wasser Wärmepumpe
Ausstattung
Energieeffiziente Bauweise• Offene & helle Wohnräume, durchdachte Raumplanung
• Neubau nach KfW-55-Standard
• Nachhaltige/zukunftssichere Haustechnik
• Hochwertige Massivbauweise
• 3-fach Isolierverglasung
• Elektrische Rollläden
• Hochwertige Bodenbeläge: Vinyl und Fliesen (frei wählbar)
• Fußbodenheizung
• Innovative Wärmepumpenheizung
• Badezimmer mit stilvollen Wand- und Bodenfliesen sowie moderner Sanitärausstattung
• Telefon- und Internetanschlüsse in allen wichtigen Räumen
Attraktive Wohnform
• EG-Wohnungen mit Terrasse & Gartenanteil (9 Stück)
• Barrierefrei
Komfort & Außenanlagen
• grüne Außenanlage
• PKW-Stellplätze: pro Außenstellplatz - zzgl. je 10.000€
• Fahrradstellplätze
Hochwertige & moderne Ausstattung
• Die persönlichen Ausstattungswünsche der Käufer können während der Bauphase noch individuell besprochen und umgesetzt werden.
Qualität vom Bauträger
• Bauträger mit über 60 Jahren Erfahrung
Sonstiges
Fordern Sie weitere Unterlagen an oder informieren Sie sich in einem persönlichen Beratungsgespräch über dieses Neubauprojekt.Sie sehen gerade einen Platzhalterinhalt von Google Maps. Um auf den eigentlichen Inhalt zuzugreifen, klicken Sie auf die Schaltfläche unten. Bitte beachten Sie, dass dabei Daten an Drittanbieter weitergegeben werden.
Mehr Informationen