Reinhardshof Panorama: Wohnen mit Weitblick – KfW-55 Maisonettenwohnung














- ImmoNr
- 1553
- Nutzungsart
- Wohnen
- Vermarktungsart
- Kauf
- Objektart
- Wohnung
- Objekttyp
- Maisonette
- PLZ
- 97877
- Ort
- Wertheim
- Wohnfläche
- ca. 106 m²
- Anzahl Zimmer
- 3
- Anzahl Badezimmer
- 1
- Kaufpreis
- 419.000,00 €
- Baujahr lt. E-Ausweis
- 2026
- Zustand
- Neuwertig
Objektbeschreibung
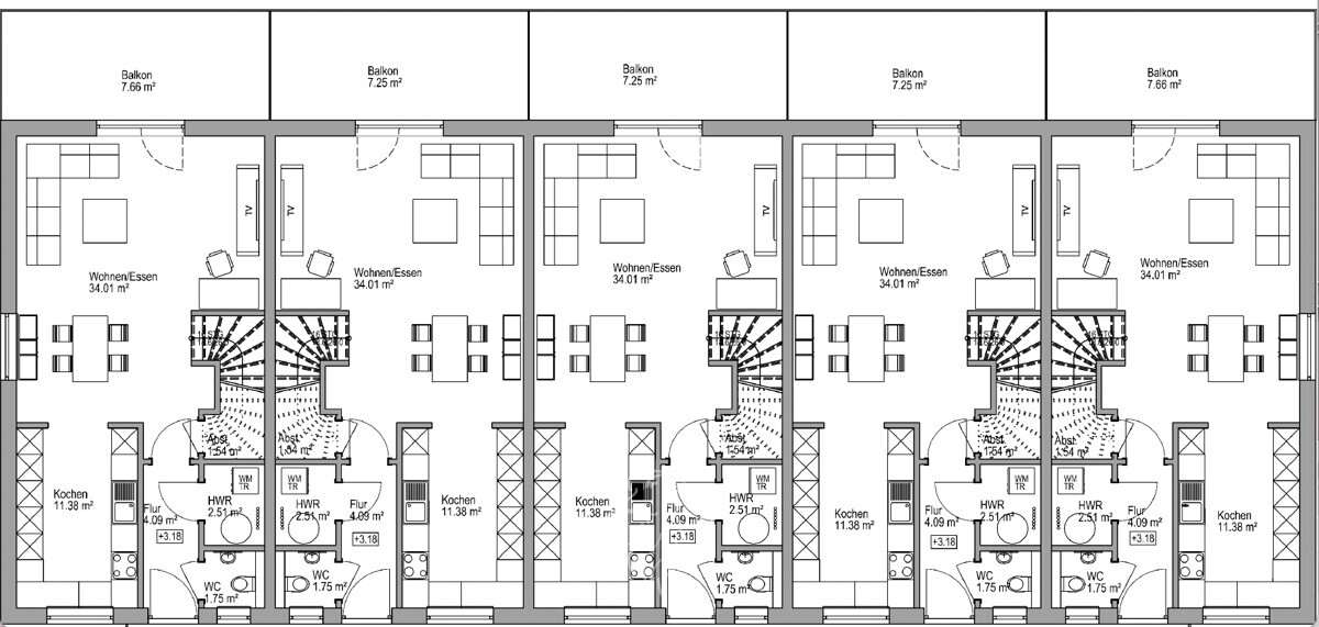
Im beliebten Wertheimer Stadtteil Reinhardshof entsteht mit „Reinhardshof Panorama“ ein modernes Neubauensemble mit insgesamt 18 Wohnungen, das zeitgemäße Architektur, energieeffiziente Bauweise und hohen Wohnkomfort vereint. Diese moderne Maisonette-Wohnung mit ca. 106 m² Wohnfläche, verbindet großzügiges Wohnen über zwei Ebenen mit hoher Wohnqualität und durchdachter Architektur.Die Wohnung verfügt über zwei gut geschnittene Schlafzimmer, ein großzügiges Badezimmer mit hochwertiger Sanitärausstattung, ein separates Gäste-WC sowie einen praktischen Hauswirtschaftsraum, der zusätzlichen Stauraum und Komfort im Alltag bietet. Herzstück der Wohnung ist der großzügige Wohn- und Essbereich mit offener Gestaltung, der durch große Fensterflächen lichtdurchflutet ist und ein modernes, einladendes Wohnambiente schafft.
Ein Balkon auf der Wohnebene erweitert den Wohnraum ins Freie. Ein besonderes Highlight bildet die private Dachterrasse in der obersten Etage, die zusätzlichen Freiraum bietet und ideale Voraussetzungen für entspannte Stunden mit Weitblick schafft.
Hochwertige Ausstattungsdetails sowie individuell wählbare Materialien ermöglichen eine persönliche Gestaltung nach eigenen Vorstellungen. Das Gebäude wird im KfW-55-Standard errichtet und überzeugt durch eine moderne, zukunftssichere Haustechnik sowie nachhaltige Bauqualität.
Mit ihrer Kombination aus moderner Architektur, großzügigen Außenflächen und energieeffizienter Bauweise eignet sich diese Maisonette-Wohnung ideal für Paare und Familien mit Anspruch an Raum und Komfort – ebenso wie als wertbeständige Kapitalanlage.
Lagebeschreibung
Wertheim, die größte Stadt im Main-Tauber-Kreis, liegt malerisch am Zusammenfluss von Main und Tauber und ist Teil der wirtschaftsstarken Region Heilbronn-Franken. Als moderne große Kreisstadt verbindet Wertheim eine hohe Lebensqualität mit stabilen wirtschaftlichen Perspektiven und einer sehr gut ausgebauten Infrastruktur. Die Stadt bietet vielfältige Arbeitsplätze in Industrie, Handel, Logistik und Dienstleistung sowie ein umfassendes Bildungs-, Betreuungs- und Gesundheitsangebot. Damit ist Wertheim gleichermaßen attraktiv für Familien, Senioren, Best Ager und Menschen mit Mobilitätsanforderungen.Die hervorragende Verkehrsanbindung über die Autobahn A3 sorgt für eine schnelle Erreichbarkeit der umliegenden Städte und Wirtschaftszentren, während die von Weinbergen, Wäldern und Flusstälern geprägte Umgebung ein naturnahes und erholsames Lebensumfeld schafft.
Der Stadtteil Reinhardshof zählt zu den beliebtesten Wohnlagen Wertheims. Das Projekt Reinhardshof Panorama befindet sich in einem ruhigen, grünen Wohngebiet mit gepflegter Bebauung und familienfreundlicher Struktur. Einkaufsmöglichkeiten, Gastronomie, Dienstleistungen sowie Freizeit- und Erholungsangebote sind in kurzer Zeit erreichbar. Spazierwege, Sportanlagen und angrenzende Waldflächen laden zu vielfältigen Aktivitäten im Freien ein.
Ärzte, Apotheken sowie Gesundheits- und Pflegeeinrichtungen befinden sich in der näheren Umgebung und gewährleisten eine sehr gute medizinische Versorgung. Fußläufig erreichbare Bushaltestellen sorgen für eine komfortable Anbindung an die Innenstadt und weitere Stadtteile. Die leicht erhöhte Lage ermöglicht attraktive Ausblicke und verbindet Naturnähe mit urbaner Nähe – ein Standort, der sowohl für Eigennutzer als auch für Kapitalanleger überzeugt.
***Entfernungen im Überblick***
- Wertheim Innenstadt: ca. 10 Minuten
- Supermärkte (Edeka, Rewe, Aldi, Lidl): ca. 5–10Minuten
- Ärzte & Apotheken: ca. 5 Minuten
- Klinikum Wertheim: ca. 12 Minuten
- Bildungseinrichtungen: ca. 5-15 Minuten
- Mainufer, Wander- und Radwege: 5-15 Minuten
Verkehrsanbindung:
- Autobahn A3 (Anschluss Wertheim/Lengfurt): ca. 15 Minuten
- Bundesstraße B8: ca. 15 Minuten
- Bundesstraße B27: ca. 15 Minuten
- Wertheim Zentrum: ca. 10 Minuten
- Tauberbischofsheim: ca. 25 Minuten
- Würzburg: ca. 40 Minuten
Flughäfen:
- Flughafen Frankfurt (FRA): ca. 60–70 Minuten
- Flughafen Nürnberg: ca. 1 Std. 45 Minuten
- Flughafen Stuttgart: ca. 1 Std. 30 Minuten
Energieausweis
- Baujahr
- 2026
- Endenergiebedarf
- 37,2 kWh/(m²a)
- Energieausweis
- Bedarfsausweis
- Energieausweis gültig bis
- 22.01.2036
- Energieeffizienzklasse
- A+
- wesentl. Energieträger
- Luft/Wasser Wärmepumpe
Ausstattung
Energieeffiziente Bauweise & moderne Technik• Neubau nach KfW-55-Standard
• Nachhaltige und zukunftssichere Haustechnik
• Hochwertige Massivbauweise
• 3-fach-Isolierverglasung für optimale Energieeffizienz
• Elektrische Rollläden
• Fußbodenheizung in allen Wohnräumen
• Innovative Wärmepumpenheizung
• Telefon- und Internetanschlüsse in allen relevanten Räumen
Moderne Architektur & Wohnkomfort
• Offene, helle Wohnräume mit durchdachter Raumplanung
• Großzügige Grundrisse über zwei Ebenen
• Hochwertige Bodenbeläge aus Vinyl und Fliesen (frei wählbar)
• Badezimmer mit stilvollen Wand- und Bodenfliesen sowie moderner Sanitärausstattung
Attraktive Wohnform – Maisonette
• Maisonette-Wohnungen mit Balkon und privater Dachterrasse (9 Einheiten)
• Großzügige Außenbereiche mit hohem Freizeit- und Erholungswert
Komfort & Außenanlagen
• Liebevoll gestaltete, grüne Außenanlage
• PKW-Stellplätze (Außenstellplatz zzgl. 10.000 €)
• Fahrradstellplätze
Individuelle Ausstattung
• Persönliche Ausstattungswünsche können während der Bauphase individuell abgestimmt und umgesetzt werden
Qualität vom Bauträger
Bauträger mit über 60 Jahren Erfahrung im Bauwesen
Sonstiges
Fordern Sie weitere Unterlagen an oder informierenSie sich in einem persönlichen Beratungsgespräch über
dieses Neubauprojekt.
Sie sehen gerade einen Platzhalterinhalt von Google Maps. Um auf den eigentlichen Inhalt zuzugreifen, klicken Sie auf die Schaltfläche unten. Bitte beachten Sie, dass dabei Daten an Drittanbieter weitergegeben werden.
Mehr Informationen