Charmantes Einfamilienhaus in Holzbauweise mit Garten und Platz für die ganze Familie
















- ImmoNr
- 1638
- Nutzungsart
- Wohnen
- Vermarktungsart
- Kauf
- Objektart
- Haus
- Objekttyp
- Einfamilienhaus
- Ort
- Iffigheim
- Wohnfläche
- ca. 100 m²
- Grundstücksgröße
- ca. 644 m²
- Anzahl Zimmer
- 5
- Anzahl Badezimmer
- 2
- Kaufpreis
- 359.000,00 €
- Außen-Provision
- 3,57% inkl. MwSt.
- Baujahr lt. E-Ausweis
- 2001
- Zustand
- Renovierungsbedürftig
Objektbeschreibung
In ruhiger und naturnaher Lage präsentiert sich dieses freistehende Einfamilienhaus in Holzbauweise als charmantes Zuhause mit besonderem Wohngefühl. Die im Jahr 2001 errichtete Immobilie besticht durch ihre warme Ausstrahlung, den charakteristischen Holzhausstil sowie ein großzügiges Platzangebot auf einem ca. 644 m² großen Grundstück.Die ca. 100 m² große Wohnfläche erstreckt sich über zwei Ebenen und bietet ein durchdachtes Raumkonzept. Im Erdgeschoss befinden sich neben dem großzügigen Wohnbereich mit Kaminofen und direktem Zugang zur Terrasse eine separate Küche, ein Esszimmer sowie ein Gäste-WC. Große Fensterflächen in Kombination mit der charakteristischen Holzbauweise sorgen für ein helles und angenehmes Wohnambiente.
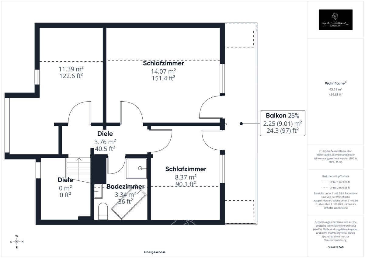
Das Obergeschoss umfasst zwei gut geschnittene Kinderzimmer, ein Elternschlafzimmer und ein Badezimmer mit Badewanne und Dusche. Ein Balkon ergänzt diese Etage und bietet zusätzlichen Freiraum.
Im Untergeschoss stehen zwei großzügige Kellerräume zur Verfügung, die sich vielseitig nutzen lassen, beispielsweise als Hobbyraum, Stauraum oder Werkstatt.
Die Ausstattung der Immobilie entspricht überwiegend dem Baujahr. Die Fenster (aus Holz gefertigt, zweifach verglast), die Stromheizung sowie die technischen Leitungen stammen aus dem Baujahr und bieten entsprechendes Potenzial für Modernisierungsmaßnahmen. Auch die Bodenbeläge und die Sanitäreinrichtungen befinden sich im Originalzustand.
Ein Carport und ein zusätzlicher Unterstand mit Platz für mehrere Fahrzeuge ergänzen das Grundstück und bieten somit auch im Außenbereich praktische Nutzungsmöglichkeiten.
Insgesamt handelt es sich um eine Immobilie mit besonderem Charakter und Entwicklungspotenzial – ideal für Käufer, die ein individuelles Zuhause mit Gestaltungsspielraum suchen.
Lagebeschreibung
Die Immobilie befindet sich in Iffigheim, einem ruhigen und charmanten Ortsteil der Stadt Marktbreit im unterfränkischen Landkreis Kitzingen. Die Lage überzeugt durch ihre naturnahe Umgebung, ein gewachsenes Wohnumfeld sowie eine angenehme, familienfreundliche Atmosphäre.Das Ortsbild ist geprägt von gepflegten Einfamilienhäusern, landwirtschaftlichen Flächen und den für die Region typischen Weinbergen. Die Umgebung bietet ein hohes Maß an Ruhe und Erholung und ist ideal für alle, die ländliches Wohnen mit Lebensqualität verbinden möchten.
Gleichzeitig profitieren Bewohner von einer guten Nahversorgung im nahegelegenen Marktbreit, das in wenigen Minuten erreichbar ist. Hier befinden sich sämtliche Einrichtungen des täglichen Bedarfs wie Supermärkte, Bäckereien, Apotheken sowie Ärzte. Ergänzt wird das Angebot durch Restaurants, Cafés und vielfältige Freizeitmöglichkeiten entlang des Mains und in der historischen Altstadt.
Familien finden in Marktbreit und der näheren Umgebung ein umfassendes Bildungs- und Betreuungsangebot. Kindergärten sowie Grund- und weiterführende Schulen sind schnell erreichbar – sowohl mit dem Auto als auch mit dem Fahrrad oder öffentlichen Verkehrsmitteln.
Die Verkehrsanbindung ist als gut zu bewerten. Über die nahegelegene Autobahn A7 sowie die Bundesstraße B8 besteht eine schnelle Verbindung in Richtung Würzburg, Kitzingen und in die gesamte Region Mainfranken. Der Bahnhof in Marktbreit ermöglicht zudem eine komfortable Anbindung an den regionalen und überregionalen Bahnverkehr.
Die Region ist bekannt für ihre hohe Lebensqualität, geprägt durch Weinbau, Natur und ein gewachsenes kulturelles Umfeld. Die umliegenden Weinberge und Rad- sowie Wanderwege bieten zahlreiche Möglichkeiten zur Freizeitgestaltung und Erholung.
Insgesamt vereint diese Lage ruhiges, naturnahes Wohnen mit einer guten Infrastruktur, kurzen Wegen sowie einer hervorragenden Anbindung an die umliegenden Städte.
Energieausweis
- Baujahr
- 2001
- Endenergiebedarf
- 114 kWh/(m²a)
- Energieausweis
- Bedarfsausweis
- Energieausweis gültig bis
- 10.04.2036
- Energieeffizienzklasse
- D
- wesentl. Energieträger
- Elektro
Ausstattung
Allgemein- Freistehendes Einfamilienhaus in Holzbauweise
- Baujahr: 2001
- Wohnfläche: ca. 100 m²
- Nutzfläche: ca. 44 m²
- Grundstücksgröße: ca. 644 m²
- Leerstehend
Innenausstattung
- Großzügiger Wohnbereich mit Kaminofen
- Direkter Zugang zur Terrasse
- Separate Küche und Esszimmer
- Gäste-WC im Erdgeschoss
- Zwei Kinderzimmer und ein Elternschlafzimmer
- Badezimmer mit Badewanne und Dusche
- Balkon
- Holzdecken und sichtbare Holzelemente
- Zwei große Kellerräume (Hobbyraum, Stauraum oder Werkstatt)
Technik & Ausstattung
- Holzfenster, zweifach verglast (Baujahr)
- Stromheizung (Baujahr)
- Leitungen überwiegend aus dem Baujahr
- Böden und Sanitäreinrichtungen im Originalzustand
Außenbereich
- Carport
- Zusätzlicher Unterstand für mehrere Fahrzeuge (ca. 3–4 Stellplätze)
- Garten / Grundstück mit vielseitigen Nutzungsmöglichkeiten
Sonstiges
- Dem Baujahr entsprechender Zustand
- Modernisierungs- und Gestaltungspotenzial
Sonstiges
Gerne stehen wir Ihnen für exklusive Besichtigungstermine zur Verfügung. Termine hierfür können Sie jederzeit schriftlich per E-Mail oder per Telefon mit uns vereinbaren.Die vorliegenden Angaben sind ohne Gewähr und basieren auf Informationen, die vom Auftraggeber zur Verfügung gestellt worden sind. Es wird keine Gewähr über die Richtigkeit, Vollständigkeit und Aktualität der Angaben übernommen.
Sie sehen gerade einen Platzhalterinhalt von Google Maps. Um auf den eigentlichen Inhalt zuzugreifen, klicken Sie auf die Schaltfläche unten. Bitte beachten Sie, dass dabei Daten an Drittanbieter weitergegeben werden.
Mehr Informationen